Reflections on my Visit to the World Trade Centre Site, May 2025
The 9/11 Memorial, evidence that nuclear fission was not involved on "9/11," the new WTC buildings (or lack of them), Oculus, the Winter Garden, "The Sphere," toasted cars, WTC-Cortland, and more!
During a recent break in New York, I took the opportunity to visit the World Trade Centre site for the first time since 2003, when I attended a conference at Columbia University.
Back then, the entire site was a giant hole in the ground, with the excavation of debris having been completed in 2002. I remember being surprised that reconstruction work on the new buildings had not yet begun. I knew nothing about what “9/11” really was, or what it truly signified.
This time, things could hardly have been more different. Multiple new buildings now occupy the site, and it is impossible to miss One World Trade Center — the tallest building in the United States — on the approach.
I could also see part of the creepy new (2016) Oculus building as I approached along Greenwich Street. Before I reached the site I was filled with a sense of foreboding. I felt as though I was approaching something very dark and evil.
That feeling was compounded when I arrived at the footprint of the South Tower, which, like that of the North Tower, now serves as part of the 9/11 Memorial.

The 9/11 Memorial pools are acre-sized squares with water pouring 30 feet down their edges and, in turn, flowing over the edges of a smaller square in the center and seemingly disappearing into the abyss. From ground level, it is impossible to see whence the water goes.

Given that over 3,000 people lost their lives as a result of the attacks of September 11, 2001, the memorial was bound to be unsettling. The names of those who died are etched into the outer perimeter where visitors stand, and the water cascades down from beneath those names like endless tears flowing into an eternal void. It is very powerful, and deeply moving to behold.

But, for me, knowing what I know now, the darkness of the site did not merely come from 3,000 extinguished lives or the aesthetics of the memorial.
Rather, it also came from knowing that “9/11” was a Big Lie perpetrated to legitimize the “War on Terror” and all the evil that has flowed from it. It came from knowing that the only way two giant skyscrapers can mostly turn to dust before hitting the ground is through classified military technology, indicating the existence of a deep state that renders liberal democracy a charade. It came from understanding that nearly all of my adult life (since 2001) has been spent living in a “West” that is ruled through fear, lies, and psychological manipulation. And it came from the fact that most of the hundreds of people gathered around the edges of the two black footprints probably had no idea about any of this.
So, as I stood there, thinking about the fate of Edna Cintron (whose name my eye happened to alight on), thinking about the “jumpers,” thinking about molecular dissociation and over 1,000 people who vanished without trace, etc., I was struck by the realization that the event which kicked off the millennium of fear and globalized the Strategy of Tension had begun right where I standing. It was chilling.
More Evidence Against the Nuclear Fission Theory of the Twin Towers’ Destruction
I have previously argued that there is no credible evidence of extreme heat being involved in the destruction of the Twin Towers, as proponents of nanothermite and mini-nukes have claimed.
My site visit provided further evidence that nuclear fission was not involved.
I had previously been interested in Heinz Pommer’s claim that water is an excellent radiation shield and that the 9/11 Memorial pools served to prevent “residual nuclear radiation” from escaping from the bedrock. Pommer also pointed to the fact that a fountain now stands on part of the footprint of the original WTC7.
Part of me wondered whether the design of the 9/11 Memorial may have fundamentally been determined by the need to hide a nuclear signature of some kind — if not from hot fission, then possibly cold fusion.
However, as eagle-eyed readers may already have noticed, when I visited the WTC site, the water in the South Tower footprint had been switched off to allow for maintenance work.

Furthermore, when I visited the 9/11 Museum, which is mostly underground, I discovered that visitors walk around the entire area beneath the North Tower pool, as well as part of the area beneath the South Tower pool.

The photograph below shows space beneath the North Tower pool, with an exhibition area inside

Beneath the pool, the footprints of the outer box columns of the former WTC1 are visible.

Thus, no obvious attempt appears to have been made to dampen any potential nuclear radiation signal, or to keep visitors away from any such signal.
This should probably have occurred to me much earlier, given that building work on the 9/11 Memorial commenced in 2006 and was not completed until 2011. I am not aware of construction workers having become ill in large numbers.

As for the fountain where the original WTC7 used to stand, it is hard to imagine it serving any purpose other than a decorative/memorial one.

The WTC7 fountain is also tiny in relation to the footprint of the old building.

Pommer’s theory regarding water being used to prevent residual nuclear radiation is, therefore, clearly wrong.
Further Thoughts on the Pools
I remain curious about what is in the bottom center of each memorial pool. Although the public cannot see that space from ground level, people in the surrounding high-rise buildings presumably can.
Google Maps shows the center of each Pool as follows:


In both pools, there appears to be a white object near the center, as well as a black object towards one edge. At least one of those objects — I am guessing the black one — must be for drainage. Perhaps they both are. Still, I would like to know what exactly the white objects are.
Below they can be seen at an earlier moment in time:

There is no way for the public to conduct a closer inspection. Quite rightly, for a memorial site, drones are not allowed.

It is possible for site officials to gain access to the bottom of the pools, however. This is necessary for cleaning and maintenance work, which takes place every weeknight between 00:00 and 08:00. For example, here is James Maroon at work:

Below is a glimpse of what lies behind the door from which Maroon exited:

If you look closely, a door is also visible in the lower section of each pool.

It would be very interesting to walk through that door and see what exactly is down there.
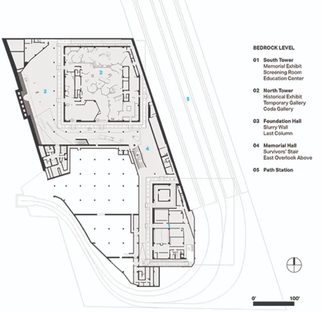
The Underground Structure of the WTC Site
I was interested in two sets of stairs (both close to One World Trade Center) leading down to an underground section of the site that is off limits to the public:


I wondered how large the underground area is that the public never gets to see. For example, what lies beneath the area shaded in blue below, which is not the 9/11 Museum?

A New York Times diagram of the proposed building plans from 2004 appears to provide the answers, showing what is contained within each of the basement levels:

We should be open to the possibility of deliberate errors in the above diagram, however, given the New York Times’ notorious propaganda function.
PATH Trains
Note that, in the NYT diagram, the PATH (Port Authority Trans-Hudson) trains run at the very bottom, on Level B4, which is also where the bottom of the 9/11 Museum is situated — hence the impossibility of using half the space beneath the South Tower pool.

The four new basement levels can also be seen in the 2005 diagram below.

In contrast, the Twin Towers had six basement levels, as per the original blueprints from 1963:

Therefore, it would appear that six original basement levels have been reduced to four.
A similar cross-section published in the Washington Post shows the PATH trains running underneath the South Tower, at the very bottom.

The reason the PATH trains are not shown in this location in the original schematics is that their routes were changed in 1971 so as to be able to accommodate longer trains on longer platforms. The change can be seen in the diagram below, with the Hudson Terminal having been decommissioned in 1971.

Even though the original PATH train route was altered, its entry/exit level through the slurry wall could not be, and the following photograph from 1969 clearly shows that it was close to bedrock:

The 1971 PATH train route was retained during reconstruction, as can be seen in the following image of Ground Zero from 2008.

The 9/11 Museum, cut off by the PATH lines, therefore appears to reach down to bedrock, or very close to it.
The New WTC Site Layout
The master plan for the new WTC site was designed by Jewish architect Daniel Libeskind in 2003. The Israeli-American architect Michael Arad was awarded the contract for the design of the 9/11 Memorial in 2004.

According to a 2011 Guardian article,
After a false start or two, several architects were asked to take part in an “innovative design study,” a process that was not supposed to have any winners. Then a winner was chosen, a group called Think, a decision overturned the next day by George Pataki, the governor of New York State, who chose Daniel Libeskind […].
Libeskind’s design studies were then called a masterplan, even though there had not been the time or money to work them out as fully as a masterplan would normally be. They then acquired the status, at least for some politicians, of designs for individual buildings, which they were not either. What were essentially sketches were treated as blueprints for multibillion-dollar structures.
Thus, the site design appears to have been politically motivated.
Below is the site plan as per the Lower Manhattan Development Corporation in June 2004.

A sign at the entrance to Oculus in 2025 reveals little substantial difference from the 2004 plan, apart from the location of the Saint Nicholas Church, the rebuilding of the bridge across West Street, and the fact that the new WTC2 and WTC5 have still not been built.

The key above-ground differences between the new and the old WTC sites are given below, as per the 9/11 Museum:

Let us run through the main WTC buildings in turn.
WTC1
The original WTC1 was the North Tower. The new WTC1 is One World Trade Center, which is built where the old WTC6 used to stand.
I was interested to observe first-hand the monstrous 56-metre-high reinforced concrete base of One World Trade Center, which is allegedly intended to protect the building against truck bombs.

Personally, I do not buy the truck bomb explanation, because the destruction of the Twin Towers was evidently a deep state event involving classified military technology. The true threat to the buildings, if any, does not come from non-state actors using relatively crude devices like truck bombs.
Besides, now that “9/11” has served its purpose in terms of legitimizing imperialist wars and ever more repressive measures domestically, there is little reason to think that the same buildings would be attacked again.
Even if we were to accept the truck bomb explanation, the 186-foot base, shielded by 30-inch-thick concrete walls, seems like overkill. For context, this is the equivalent height of 17 stories and is higher than the adjacent Perelman Performing Arts Center, a major venue in its own right.

The lobby and the lower level lobby (the two dark horizontal strips on the image below) only account for a small fraction of the 186-foot base. What takes place within the massive space above them that is designated as “mechanical floors”?

It is hard to imagine that some 10-12 stories would be required to service the rest of the building, given that there were only six basement levels beneath the Twin Towers, measuring just 70 feet down. And even if that were the case, what of the area beneath the new One World Trade Center?
Rather, one is reminded of 33 Thomas Street, the concrete building used by AT&T and the NSC for surveillance purposes.

It is not difficult to imagine a “national security” agency or agencies being hidden in plain sight inside the base of One World Trade Center.
WTC2
The design for the new WTC2 keeps changing. The original design, by Sir Norman Foster, would have resulted in the site looking like this:

In 2015, Silverstein Properties commissioned Bjarke Ingels Group (BIG) to produce a new design intended to house 21st Century Fox and NewsCorp in its bottom two floors.

A Port Authority of New York image showed what the BIG building would have looked like by night:

After 21st Century Fox and NewsCorp chose not to leave their existing headquarters, the new WTC2 design was replaced again in May 2025, this time by another design by Foster + Partners:

WTC2 starkly highlights the commercial realities that play a vital role in the redevelopment of the WTC site. Although Libeskind’s “masterplan” set the site layout, Silverstein Properties had leased the WTC site in July 2001 (before claiming a record $4.55 billion insurance payout for the damage inflicted two months later).
Nothing gets built on the site without Larry Silverstein’s permission, although he did cede the rights to develop WTC1 and WTC5 in 2006 in exchange for tax-free financing of WTC2, WTC3, and WTC4 (having already completed WTC7).
The new WTC 2 was always slated to be built in the block marked “2” below:

For the time being, however — over two decades after plans for a new WTC2 were first announced — construction on the proposed 62-story building has barely proceeded above ground level, owing to a lack of interested tenants.

Meanwhile, the far end of the block (toward Church Street) is heavily graffitied (the so-called “mural project”) and contains a beer garden — entirely out of keeping with the solemnity one would expect at the spot where WTC5 used to stand.

The graffiti, the beer garden and the phallic WTC1 align sinfully (an “axis of evil”?) against the church across the street.

Meanwhile, St. Paul’s Chapel, directly opposite, faces back with the quiet dignity of the ages.

WTC3 and WTC4
The new WTC3 and WTC4 are far taller than the original versions of those buildings. Both are situated to the east of Greenwich Street, which now cuts through the WTC site, albeit with heavily restricted vehicular access enforced by checkpoints. WTC3 is in a different location from its predecessor (the Marriott hotel).

The new WTC3 (left) and WTC4 (right)
One interesting feature of the new buildings is that they hide the buildings behind them, which, originally, were clearly visible from the WTC site.

Much has been made about the potential occult significance of the Millennium hotel, which resembles the monolith in Stanly Kubrick’s 2001: A Space Odyssey and offered a prime viewing platform from which to watch the destruction of the Twin Towers.

Regardless of any potential occult symbolism, having studied “9/11” for years, I was struck by how obscured the Millennium hotel (and the other buildings) now are and, thus, how the character of the site has been significantly transformed.
It is often forgotten that all seven buildings with a WTC prefix were destroyed on September 11, 2001 — not just the Twin Towers plus WTC7. For example, look what happened to WTC3:

Similarly, most of WTC4, apart from its north wing, was destroyed.

Note the section of WTC2’s outer wall in the foreground that I have ringed. Incredibly, this massive section (for scale, see the people in the bottom right of the image below) landed upside down on the far side of WTC4, having possibly broken off from a section of wall that appears to be lying on top of WTC4.

I have long been puzzled by claims that the extent of the damage to WTC3 and WTC4 is difficult to explain. We know, to quote Dr. Judy Wood, that each of the Twin Towers was “peeled apart like a banana,” and although virtually all of their interior contents were dustified, large sections of the outer walls can be identified in the wreckage.
For example, much of the east-facing outer wall of WTC2 can be seen on top of the damaged section of WTC4. Evidently, it was the steel from WTC2 that was primarily responsible for slicing WTC4 in two.

Similarly, it does not take a genius to work out what did most of the damage to WTC3.

In terms of the North Tower, a large section of the outer wall was visible over West Street, destroying the North Bridge and damaging WFC3 and the Winter Garden.

If we imagine the Twin Towers peeling apart and crudely plot (using red rectangles) where the main damage to other buildings would have been, we find that it corresponds fairly closely to the actual damage caused (marked by lightning symbols on the diagram below).
Below is a collage of some of that damage.

The main lesson of WTC3 and WTC4 for me is that, even if those buildings were, potentially, affected by the exotic weaponry used to destroy the Twin Towers, not everything to do with the WTC destruction requires recourse to such weaponry. Sometimes, falling steel offers a powerful enough explanation.
WTC5
The original WTC5 stood where the new WTC2 is to be built. Because it was further away from the Twin Towers than the other buildings, the roof damage was far less extensive.

Noticeably, the northeast (top right) section of WTC5, which was not in line with the outer walls of the Twin Towers, suffered no roof damage. One only has to fan the red rectangles out slightly (for not all material was ejected at 90 degrees) to account for the damaged areas.

The fires that gutted WTC5, on the other hand, still require explanation.


The new WTC5 is to be built where the Banker’s Trust/Deutsche Bank building once stood. According to Wood in Chapter 12 of Where Did The Towers Go?, that building experienced mysterious rapid rusting after being damaged on September 11, 2001, even following repairs. Why was this?
Lower Manhattan Development Corporation purchased the site in 2004, tore down the building, and finished excavation work there in 2011. The proposed design for the new WTC5 is as follows.

In front of the proposed WTC5 site stands the new St Nicholas Greek Orthodox Church and National Shrine, which opened in December 2022, replacing the church that was destroyed on September 11, 2001. The church has moved along Liberty Street from the west side of the WTC complex to the east side.

Amazingly, the new WTC5 is currently a car park.

As with the new WTC2, it is astounding that, 22 years after the approval of Libeskind’s master plan, WTC5 has still not got off the ground. This seems to have to do with financing and the need to secure tenants in advance, but it shows that, no matter how powerful the actors behind “9/11,” there are limits to their power.
This is an important consideration, because the sheer materiality of the new site is otherwise disturbing (or at least it was to me). A new reality has been scripted and brought into being through millions of tons of steel and concrete, making it seemingly unchangeable — a brute expression of power. Many thousands of people wonder through the new reality every hour, seemingly accepting it. I wondered what proportion of them ever thought along similar lines to me.
WTC6
One of the peculiar features about the new WTC site is that there is no WTC6. The new WTC7 was the first new building to be completed in 2006, yet Libeskind’s master plan did not include a Building 6. Why not?
Critics have observed the similarities between the destruction of the Alfred P. Murrah Building in the Oklahoma City bombing of 1995 and the destruction of WTC6 in 2001:

Was a separate device was used to core out WTC6, or was falling debris from WTC1 sufficient? Critics of the latter position argue that there was not enough debris from WTC1 evident inside WTC6.
Yet, there was certainly some debris from the adjacent WTC1 visible inside WTC6, with the main hole predictably falling in line with the WTC1 outer wall.

It is not difficult to imagine falling steel beams from WTC1 creating the other hole in WTC6. Aluminum cladding from WTC1, for instance, can be seen all over the remaining roof of WTC6, indicating the spread of debris.
We saw with WTC4 that the outer wall of WTC2 effectively flattened most of the building. Similar could be true with respect to WT6 and WTC1, respectively. Indeed, if we look to the opposite side of the main hole in WTC6, we can see part of the outer wall of WTC1 visible almost like a waterfall as I have highlighted it.

The fact that there is a “reflecting pool” where the Alfred P. Murrah building used to stand has prompted speculation that some kind of nuclear device may have been used both there and on WTC6. High tritium levels found in dust samples from WTC6 may also point to some kind of nuclear reaction. However, we know that any such reaction did not involve fission for reasons previously given.

Other interesting facts about WTC6 include the 1.2 million rounds of ammunition stored on the third floor, which were found “melted together into large ‘bullet balls’” (Professional Safety, 2002, p. 26). Somehow, they had “melted” without going off.
Toasted cars were found in basement level B3 of WTC6.
Source: 60 Minutes (at 4:02)
WTC6 basement level B6 (containing the PATH train route) was almost entirely undamaged.
WTC7
The new WTC7 building was the first new WTC building to be completed, in 2006.

It replaced the old WTC7, which at 17:20 on September 11, 2001, mysteriously lost all structural integrity and collapsed vertically straight down into own footprint, the slight kink in its otherwise horizontal roofline resembling a classic controlled demolition.

NIST tried ignoring WTC7 in its early reports, and when it was finally forced to address it in 2007, it farcically came up with a new physical phenomenon — “thermal expansion” — to explain how isolated fires in a small part of the building had managed to achieve a global impact on the building. Evidently, all the core columns must have failed simultaneously.
The isolated fires had allegedly been started by falling debris from WTC1. Thus, according to NIST, two “planes” were able to destroy three towers!
Barry Jennings, the Deputy Director of Emergency Services for the New York City Housing Authority, reported to the Office of Emergency Management (OEM) on the 23rd floor of WTC7 between the first and second alleged planes hitting the Twin Towers. Before the second plane hit, a massive explosion shook WTC7, trapping him in the building until firefighters could rescue him. He gave eyewitness testimony on the day, and again to Dylan Avery in 2007. Two days before the publication of the final NIST report, which claimed there were no explosions in WTC7, Jennings died in suspicious circumstances, aged 53.
The new WTC7 is a boring, unimaginative building that does not interest me architecturally, especially given how fascinating the rest of the Manhattan skyline is.

It would not surprise me, therefore, if very important decisions were being taken in the new WTC7, much as the transnational deep state emerged from such blandly named organizations as the Office of Policy Coordination in the late 1940s.
One thing that did interest me about the new WTC7 site was the inscription around the edge of the memorial fountain: “DEDICATED TO THOSE WHO SURVIVED SEPTEMBER 11 2001.” Not “Dedicated to those who died,” as one might have expected of such a memorial.

Officially, the dedication to survivors fits with the themes of survival and resilience, as echoed in the “Survivor’s Tree,” Fritz Koenig’s “The Sphere,” and the Memorial Glade (dedicated to responders made ill by breathing in toxic air after the Environmental Protection Agency claimed the air was safe to breath).
Still, the dedication seems odd to me. It could be interpreted, for instance, as relating to the OEM officials on floor 23 of WTC7 who, by the time Barry Jennings arrived not long after 08:46, had already fled the scene, leaving still warm cups of coffee behind, according to his testimony. They got out before the bombs went off which destroyed the WTC7 lobby, trapping Jennings in the building until he could be rescued.
The sculpture in the middle of the fountain also interests me. The original sculpture (Jeff Koons’ “Balloon Flower,” installed in 2006) was obviously inappropriate for a memorial space: bold, brash, shiny, playful, and originally part of Koon’s “Celebration” series. Was Larry Silverstein’s choice of sculpture a form of mockery?

In 2021, a new sculpture was installed: Frank Stella’s “Jasper’s Split Star” (2017).

The “Split star” concept makes me think of the sun, which creates energy through nuclear fusion, i.e., combining two atomic nuclei to form a heavier nucleus, releasing energy in the process.

But, unlike the sun, “Jasper’s Split Star” is a cold, monochrome sculpture (going back to Stella’s 1962 painting, “Jasper’s Dilemma” [1962]). Thus, I cannot help wondering whether we are looking at a revelation of the method here, symbolically putting cold fusion on full display in a prominent 9/11 memorial.
Oculus
Let us turn now to some of the other buildings and landmarks at the new WTC site.
Above the new transportation hub stands the Oculus building, which, officially, calls to mind a dove of peace.
To my mind, however, it represents an architectural abomination that neither complements the surrounding area, nor is pleasing in its own right.

Inside the Oculus, we find that the viewer’s attention is directed upwards, towards the narrow slit in the roof.

According to the Port Authority of New York, the slit in the roof
is in alignment with the sun’s solar angles on each September 11, from 8:46 am, when the first plane struck, until 10:28 am, when the second tower collapsed. Its central skylight fits this alignment and washes the Oculus floor with a beam of light.
In 2017, two years after Oculus opened, the effect looked like this on September 11:


As the name “Oculus” suggests, this is an all-seeing eye that opens but once a year. According to its architect, Santiago Calatrava, in 2015,
In all weather conditions, the public will experience a subtle sense of man’s vulnerability, while maintaining a link to a higher order.
As noted by Truthstream Media, the connection to trauma-based mind control is obvious. Not only was “9/11” itself a trauma-based mind control event, but Oculus also invites participants to relive their sense of vulnerability through a form of annual reconditioning.
The Winter Garden
The Winter Garden was damaged by debris from the North Tower, which was located around 150 meters away. It thus served as a marker of the incredible horizontal force (i.e., not a gravity-driven “collapse”) with which massive amounts of material were ejected.
Like the Millennium Hotel, the Winter Garden is today barely visible from the WTC site because of a new structure placed in front of it, in this case, the entrance to Brookfield Place.

From a distance, the Winter Garden is more visible, as can be seen on the Fulton Street axis that has been inserted between the former WTC1 and WTC6.

For the most part, however, the Winter Garden is no longer conspicuous from the WTC.
The Sphere
“The Sphere” is a cast bronze sculpture by German artist Fritz Koenig that stood in the Austin J. Tobin Plaza of the WTC from 1971 to 2001.

Below we see “The Sphere” in relation to the Twin Towers, cast in shadow.

Remarkably, “The Sphere” suffered minimal damage when the Twin Towers were destroyed.


To be honest, I do not understand why the east-facing wall of the North Tower did not destroy “The Sphere.” Perhaps the “banana” did not peel evenly in all directions.
Today, “The Sphere” stands in the newly created Liberty Park, where the Banker’s Trust/Deutsche Bank building used to stand, whence it was relocated from Battery Park in 2017.

Here it is today, close up, as I walked round it:

The relative lack of damage is astonishing.
By way of contrast, when I visited the United Nations, I came across Italy’s 1996 gift, which, though undamaged, ironically appears (because of its design) more damaged than the sphere!

Subway Propaganda
As I rode regularly up and down the 1 line, I noticed the lack of imagination in the platform designs, compared to European subway platforms. In all cases bar one, the walls were simply white tiles.
The exception was WTC-Cortlandt, where a veritable artwork had been formed along the walls by Ann Hamilton, showing 3D text from the 1776 Declaration of Independence and the 1948 United Nations Declaration of Human Rights.

The irony could hardly have been more palpable. At the very site where the seminal event took place which led to an escalating attack on inalienable and human rights (from Guantánamo Bay to the assault on bodily sovereignty during “Covid”), those rights are precisely what are being upheld in wall-to-wall propaganda.
Planes and Skyscrapers
One thing that surprised me during my repeated visits to the WTC site was that a regular flight path saw planes heading past every few minutes, heading north, from not very far away (i.e., still low altitude). I am guessing they had just taken off from Newark.

Admittedly, the planes had gained altitude and were to the west of the WTC site by the time they passed, but I could not help noticing how tiny they were in relation to One World Trade Center from ground level, as shown below when photographed on three separate occasions.

Obviously, the planes would look much bigger if striking the tower, but still they reminded me of the utter implausibility of jet fuel from an airliner being sufficient to weaken the structural integrity of buildings of this size.
Relative Scale
Despite the massive size of the buildings involved, I was surprised by their relative smallness in the grander scheme of things.
For example, when I took the ferry to Staten Island, I was amazed how close everything seemed from Battery Park. There are famous videos shot at or around that location (e.g. from a nearby ferry) which appear to show the second “plane” slamming into the South Tower with its left wing mysteriously vanishing at key points, e.g. behind a building on the approach route and again before impact.

Having spent years watching the events of “9/11” unfold online, I could not believe how close the relevant buildings were and how much shorter all the distances were in reality.
It gave me a new appreciation of the power of TV/video to make things seem bigger and more important than they really are.
For example, when we reached Staten Island, it was obvious, from a distance, that One World Center is by far the tallest building in Manhattan.

Yet, up close, it was hard to recognize the height of One World Trade Center compared to other nearby buildings. For example, during the taxi ride to our nearby hotel in lower Manhattan, I was struck by the fact that One World Trade Center appeared (or perhaps disappeared) as just one high-rise building among many.
And so, while the Twin Towers were the sixth highest buildings in the world at the time, and while One World Trade Center is now the tallest building in the United States, it is important to maintain a sense of perspective.
They are, or were, just buildings. Using classified military technology to destroy a couple of buildings, not matter how tall, is still just destroying a couple of buildings (plus the rest of the WTC site).
Should it really be possible to base an everlasting and universal “War on Terror” (i.e., the pretext for imperialist wars abroad and suppression of civil liberties domestically) primarily on the destruction of two buildings?
Any sane person would say no, yet the power of 21st-century propaganda has been sufficient to convince the public otherwise.
“Toasted” Vehicles
I visited the intersection on Barclay Street and Church Street where some of the “toasted” vehicles were found on “9/11.”

The mysterious vehicle fires were in fact much more widespread than just this one area. For example, even before the Twin Towers were destroyed, an apparent vehicle fire was taking place right outside one of them.

Following the destruction of the Twin Towers, some incredible photographs of vehicles were taken.



How could two collapsing buildings do this to nearby vehicles, without burning the paper or the people caught up in the dust clouds?
Why did the vehicle below catch fire?

Here it is in the aftermath, with WTC7 still standing in the background, meaning that this all took place before 17:20 on September 11, 2001. Note the other “toasted” vehicles on the street, also.

Then there was the “toasted car park” a few blocks northwest of the WTC site:

What did this to the cars? Again, they were not “singed” by the dust clouds, otherwise thousands of people caught up in those dust clouds would have been badly burned, which was not the case.
As noted in my earlier presentation, it is a mystery why some of the cars in this car park appeared to be unaffected while others were completely destroyed.

When I went looking for the “toasted car park,” I found it had been turned into a sports field, with children’s baseball being loudly cheered at the time.

Thus, as with the Millennium hotel and the Winter Garden, an important reference point in relation to the events of “9/11” has been concealed.
Conclusion
My visit to the World Trade Center site in the final week of May 2025 was fascinating on many levels.
Architecture tells its own story, and the design of the new site, including the 9/11 Memorial, caused me to reflect on all kinds of things, from the evil of what took place there, to the impossibility of nuclear fission devices having been used, to what is located below ground.
The new buildings — or lack of them in the case of WTC2 and WTC5 — are very interesting. What is really the point of the massive concrete base of WTC1? Why is the WTC2 plot, with its beer garden and graffiti, so inappropriate, considering that it is located on hallowed ground? WTC3 and WTC4 give the site a whole new visual complexion and should prompt reflection as to what happened to their predecessors. Why is there no new WTC6? And why have the sculptures next to WTC7 been so peculiar?
Other landmarks are equally fascinating. Does the hideous Oculus have occult significance? Are we to forget about the damage to the Winter Garden, which is now scarcely visible? How exactly did the Sphere, which was located towards the center of the WTC site, survive mostly undamaged? What caused nearby cars to be “toasted”?
Finally, we cannot ignore the politics behind what has happened. Who would fall for the subway propaganda that the “War on Terror” was about defending inalienable and human rights? How did Western societies allow the destruction of a few buildings to legitimize the new millennium of fear? And, as the technocratic noose begins to tighten, at what point will those societies say enough is enough?
Support My Work
If you valued this content and are not a paid subscriber, please consider leaving a one-off tip for an amount of your choosing.
If you would like to make a one-off or recurring donation to help fund my work in general, I would be most grateful. There are numerous ways of doing so.
If you have not done so already, please consider taking out a subscription – free, paid, or gold-tier.